Вернуться к выбору квартиры

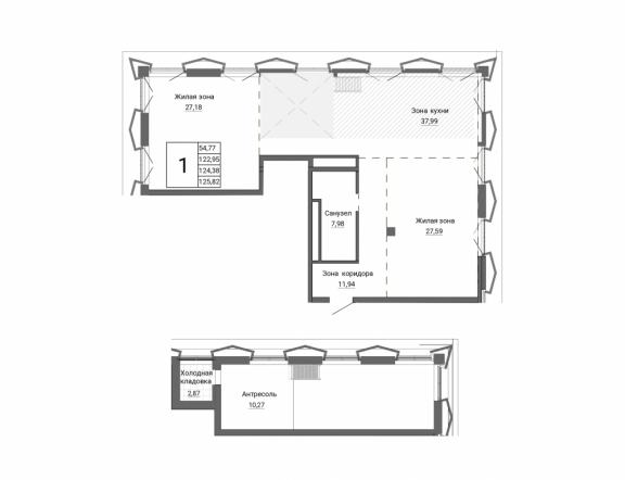
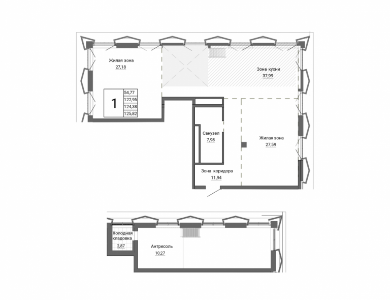
Однокомнатная квартира №127

Планировка квартиры
План этажа
Площадь 123,54 м2
Срок сдачи 1 квартал 2027 г.
Этаж/этажность 16/16
Отделка Черновая

58 912 567

Оставить заявку в отдел продаж

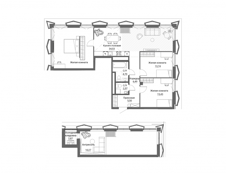
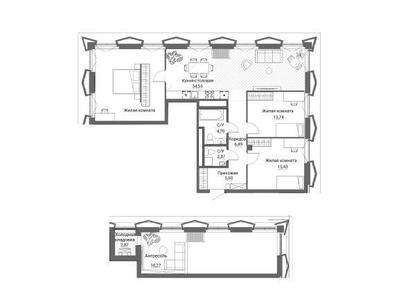
Варианты организации пространства