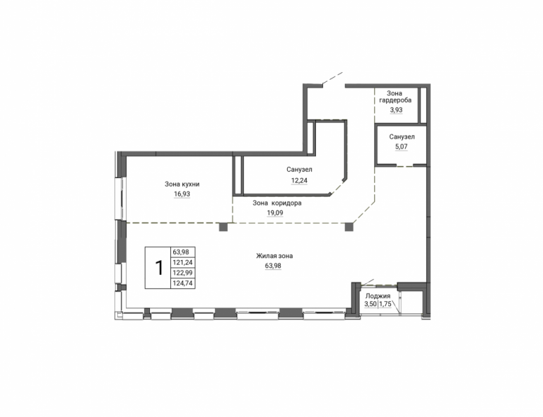
Однокомнатная квартира №41
Планировка квартиры
План этажа
Площадь
120,75 м2
Срок сдачи
1 квартал 2027 г.
Этаж/этажность
6/9
Отделка
Черновая
36 321 185 ₽