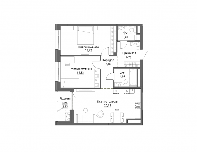
Двухкомнатная квартира №46
Планировка квартиры
План этажа
Площадь
81,19 м2
Срок сдачи
1 квартал 2027 г.
Этаж/этажность
7/9
Отделка
Черновая
24 617 000 ₽